Dingolfing

Schülerwohnheim in Dingolfing

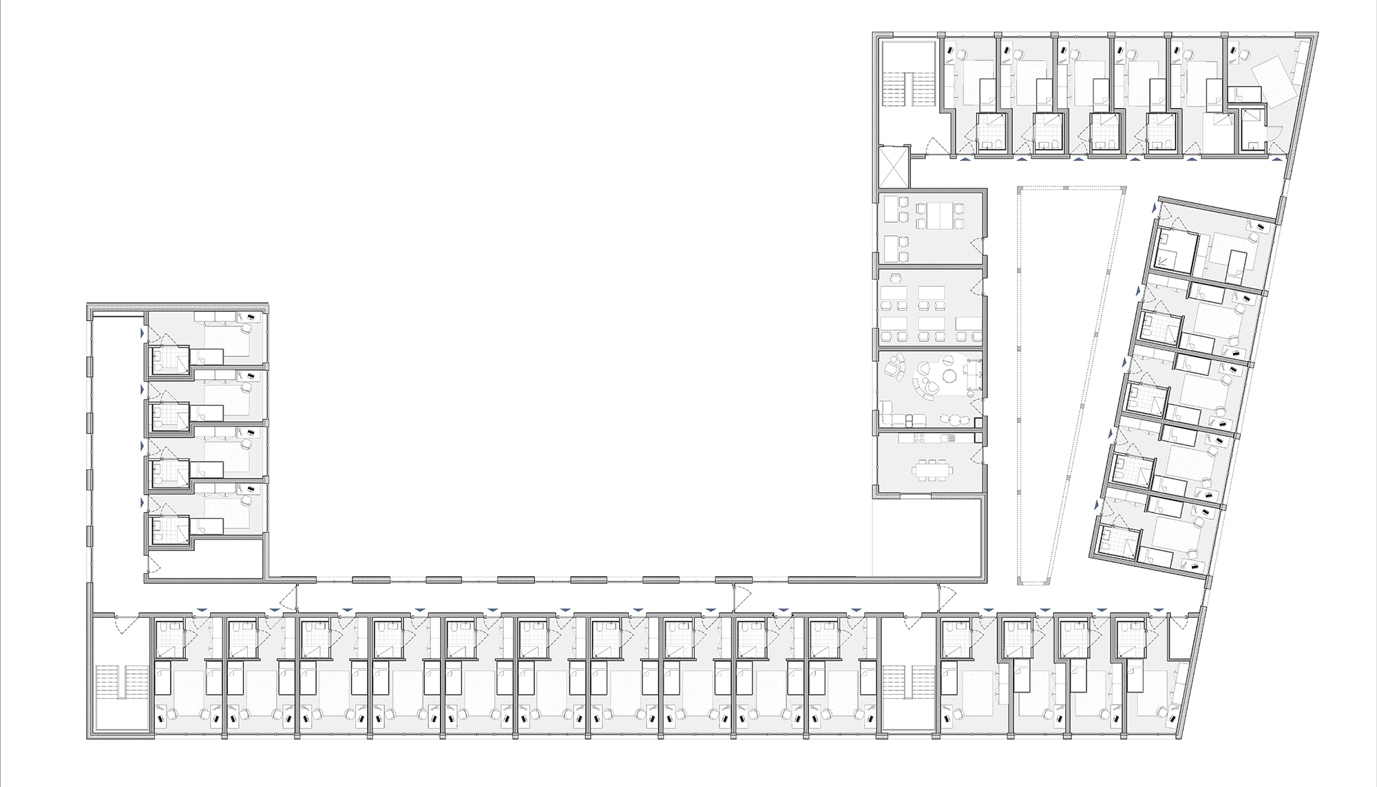
Das Landratsamt Dingolfing-Landau gab für seine Berufsschule in Dingolfing ein Schülerwohnheim für rund 85 Schülerinnen und Schüler in Holzmodulbauweise in Auftrag.

Das Gebäude wurde auf einem Parkplatz direkt vor der Berufsschule errichtet und wurde so aufgeständert, dass ein großer Teil der Parkplätze erhalten werden konnte. Darüber liegen auf drei Stockwerken die Wohnheimszimmer sowie eine Mensa.

Pläne

Weitere Referenzen