LiWooD Social Homes
Nachhaltiges Zuhause - gelingende Integration

Flexible Wohnlösungen für akuten Bedarf

Temporäre und dauerhafte Wohnformen zur Unterbringung von Geflüchteten oder als Sozialwohnungen – modular, schnell umsetzbar, förderfähig, hochwertig.

Die Gebäude lassen sich an wechselnde Bedarfe anpassen und bieten gleichzeitig eine langfristig nutzbare, qualitätsvolle Lösung für angespannten Wohnraum.

01
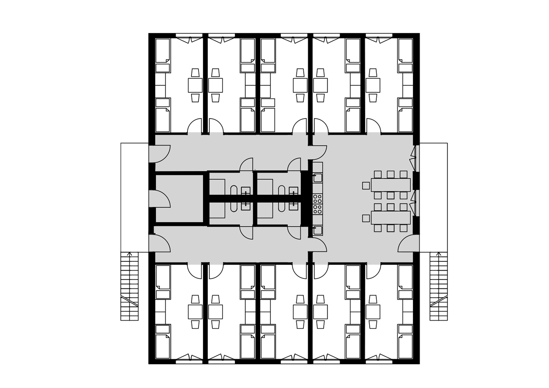
Gebäudetypen

Durch flexible Kubaturen passen sich die Gebäude optimal den Gegebenheiten des Baufeldes an um das Potential der Grundstücke bestmöglich zu nutzen. Es entstehen nachhaltige, funktionale Wohnräume mit hoher Aufenthaltsqualität, die auf die Bedürfnisse junger Menschen, Studierenden und Menschen in Ausbildung zugeschnitten sind. So finden wir für jedes Grundstück den passenden Gebäudetyp.

02
Wohnformen

Der modulare Holzbau ermöglicht die wirtschaftliche Realisierung unterschiedlichster Wohnformen – von Einzimmer-Apartments über Zweizimmereinheiten bis hin zu Wohngemeinschaften. Dank flexibler Modulkombinationen lassen sich die Grundrisse so optimieren, dass die verfügbare Fläche maximal ausgenutzt wird. Das Ergebnis: nachhaltiger, flächeneffizienter Wohnraum, bedarfsgerecht und investitionssicher geplant.

03
Finanzierungsmöglichkeiten

Gemeinschaftsbereiche wie Mensa, Aufenthaltsräume, Lernzonen oder Dachterrassen lassen sich im modularen Holzbau problemlos integrieren. Durch die flexible Modulbauweise entstehen großzügige, offene Räume für Freizeit, Austausch und gemeinsames Lernen.

Kauf

LiWooD versteht sich als Hersteller von schlüsselfertig errichteten Objekten. Wir bieten sowohl fertig entwickelte Standardgebäude wie auch individuell konfigurierbare Objekte auf Grundlage eines GÜ-Vertrages an. Unsere Kunden können dabei auf eine schnelle Realisierung und absolute Kostensicherheit vertrauen.

Miet- und Leasingmodell

Die Kosten für ein solches Projekt sind auf die Laufzeit gerechnet häufig nicht wirtschaftlich. Daher haben wir ein Mietsystem entwickelt, um den benötigten Raum flexibel zur Verfügung zu stellen. Die Mietverträge werden individuell an die Bedürfnisse des Projekts angepasst.

Referenzen

Ihr Projekt –
unsere Lösung

Gemeinsam mit Ihnen entwickeln wir maßgeschneiderte Wohnbaukonzepte, die architektonisch überzeugen und wirtschaftlich tragfähig sind. Sprechen Sie mit uns – wir freuen uns auf Ihre Ideen!