LiWooD Home
Natürlich wohnen - modular bauen

Wohnen mit
System

Unser Bausystem ermöglicht Wohnbauprojekte bis zur Hochhausgrenze – wirtschaftlich, nachhaltig und vollständig individuell planbar.
LiWooD Home – Wohnen mit System Modularer Wohnungsbau für Nachverdichtung und Neubau mit freier Fassadengestaltung, flexiblen Grundrissen und variablen Dachformen.

01
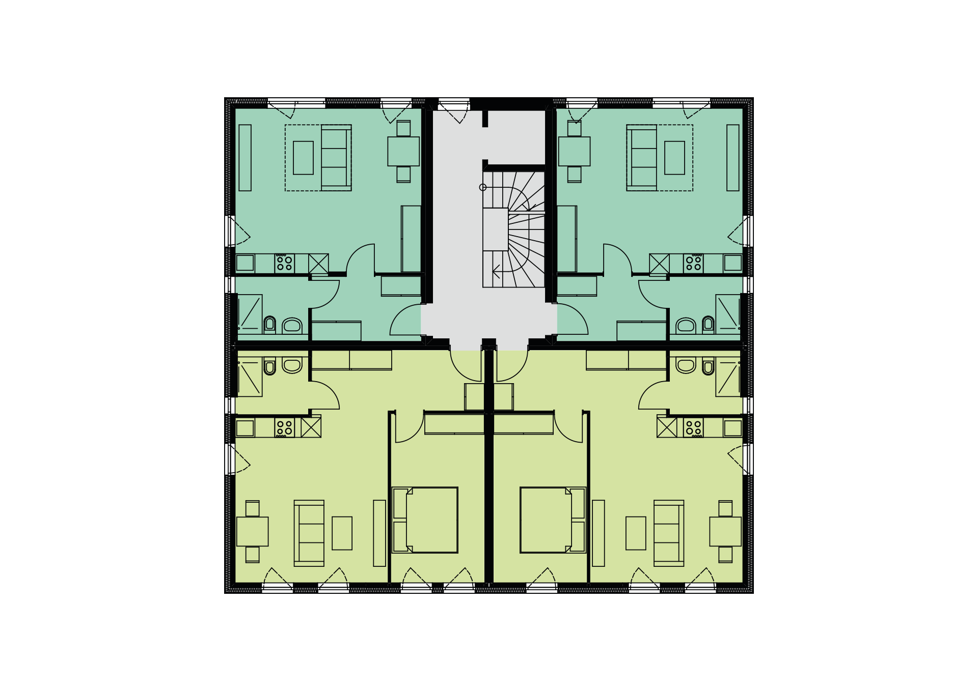
Flexible Grundrisse

Vom kompakten 1-Zimmer-Apartment bis zur großzügigen Familienwohnung – jeder gewünschte Wohnungsmix ist realisierbar. Auch besondere Wohnformen wie Cluster-wohnungen, betreutes Wohnen oder Wohngemeinschaften lassen sich einfach umsetzen.

Unsere Bauweise erlaubt vollständige
Freiheit in der Grundrissgestaltung Unabhängig von standardisierten Modulen. Räume lassen sich bedarfsgerecht anordnen, kombinieren oder flexibel zonieren – ohne Kompromisse. Selbst bei Nachverdichtungs-projekten können Grundrisse völlig unabhängig vom Bestand geplant werden.  Wir schaffen durch unser System die Freiheit Wohnungen nach Anforderungen des Bauherrn zu bauen – nicht den Anforderungen des Bestands zu folgen. 

02
Fassadengestaltung

Beim Punkthaus sind den Fassadengestaltungen kaum Grenzen gesetzt: von vorgehängten, hinterlüfteten Systemen mit Faserzement oder Holz bis zu Putzfassaden mit vielfältiger Farbgebung – insbesondere im geförderten Wohnungsbau.

03
Balkone

An jeder Fassadenseite des Punkthauses können selbsttragende Balkone angebracht werden. Diese additiven Balkone werden entsprechend Grundrisskomposition und Nutzungsbedarf positioniert und können entsprechend Himmelsrichtung und Grundstücksbesonderheiten organisiert werden.

04
Dachformen

Durch die Ausführung verschiedener Dachformen kann auf die baurechtlichen Vorgaben wie auch auf die technischen Ausführungsmöglichkeiten und den Nutzungsbedarf reagiert werden. Bei geneigten Dächern kommt ein Dachstuhl zimmermannsgerecht aufgesetzt, abgedichtet und gedeckt. Auch der Ausbau des Dachgeschosses ist für uns möglich.

Referenzen

Ihr Projekt –
unsere Lösung

Gemeinsam mit Ihnen entwickeln wir maßgeschneiderte Wohnbaukonzepte, die architektonisch überzeugen und wirtschaftlich tragfähig sind. Sprechen Sie mit uns – wir freuen uns auf Ihre Ideen!