Hamburg

Sustainable Densification of a Residential Quarter in Hamburg

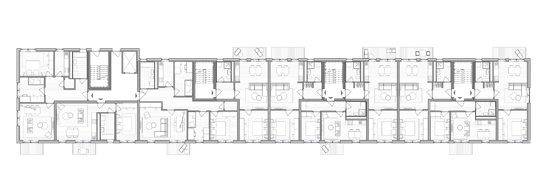
In the east of Hamburg, six existing buildings in the Horner Geest are being expanded with two-storey extensions and five-storey head-end structures.

Innovative wood modules from LiWooD are being used, which are prefabricated in a mobile production facility near Boizenburg. This significantly shortens the construction time, and the burden on the tenants remains minimal – relocations are not necessary. The existing foundations were previously reinforced with epoxy resin. Outdoor facilities and playgrounds are also being redesigned. A total of 229 new, mostly covered bicycle parking spaces are being created. The project is a pilot project within the framework of the urban development concept “Zukunftsbild Horner Geest 2030” and stands for sustainable, resource-saving densification.

Plans

More References